Boutique
The Perfect Canvas for Self-Expression
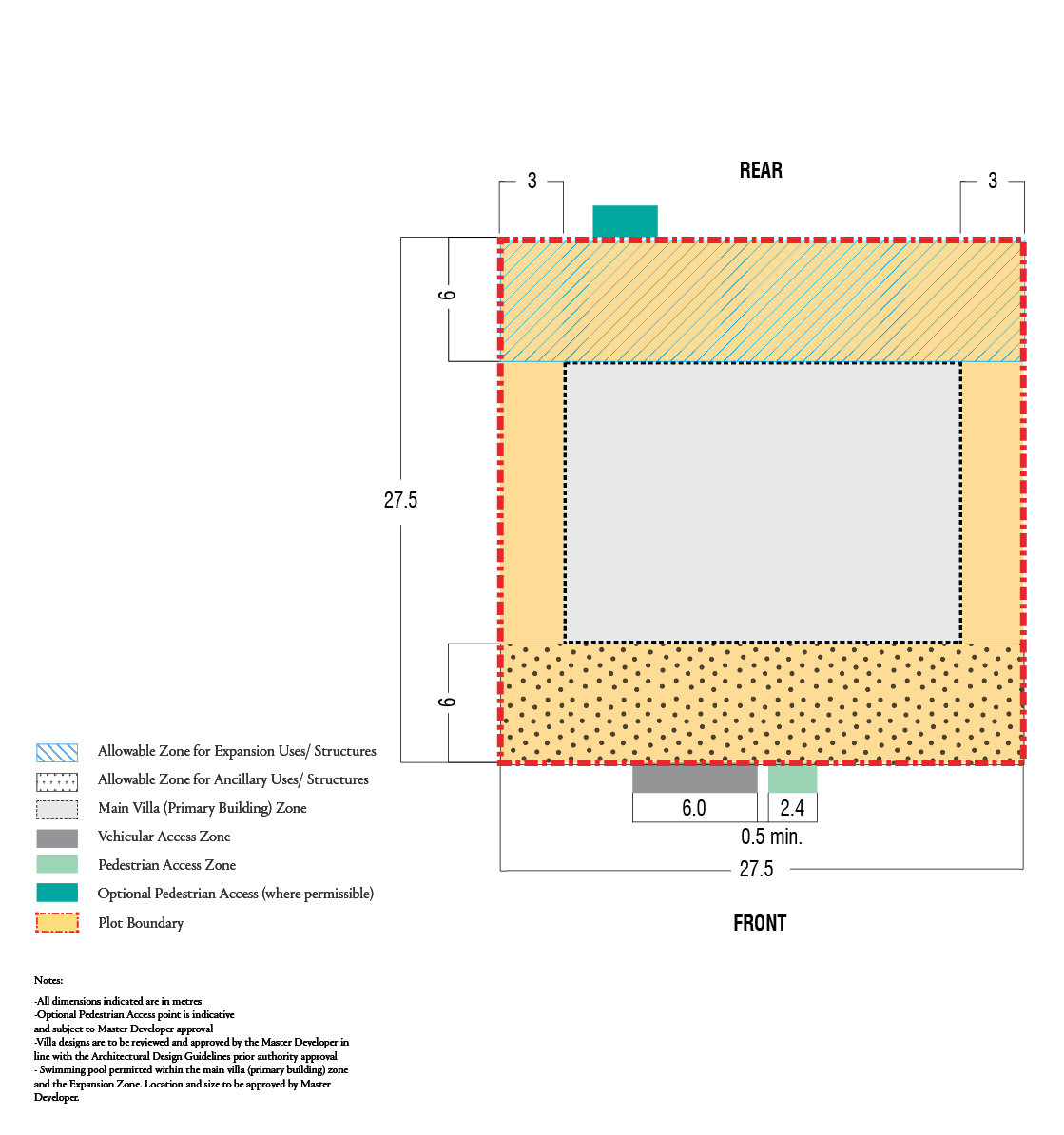
A canvas that allows personal expression. A limited selection of land plots gives discerning homeowners the opportunity to craft their own vision of home within the AlJurf tapestry. Plots come in multiple sizes and layouts to offer greater freedom of expression.